Ballard Gilman (Anker)
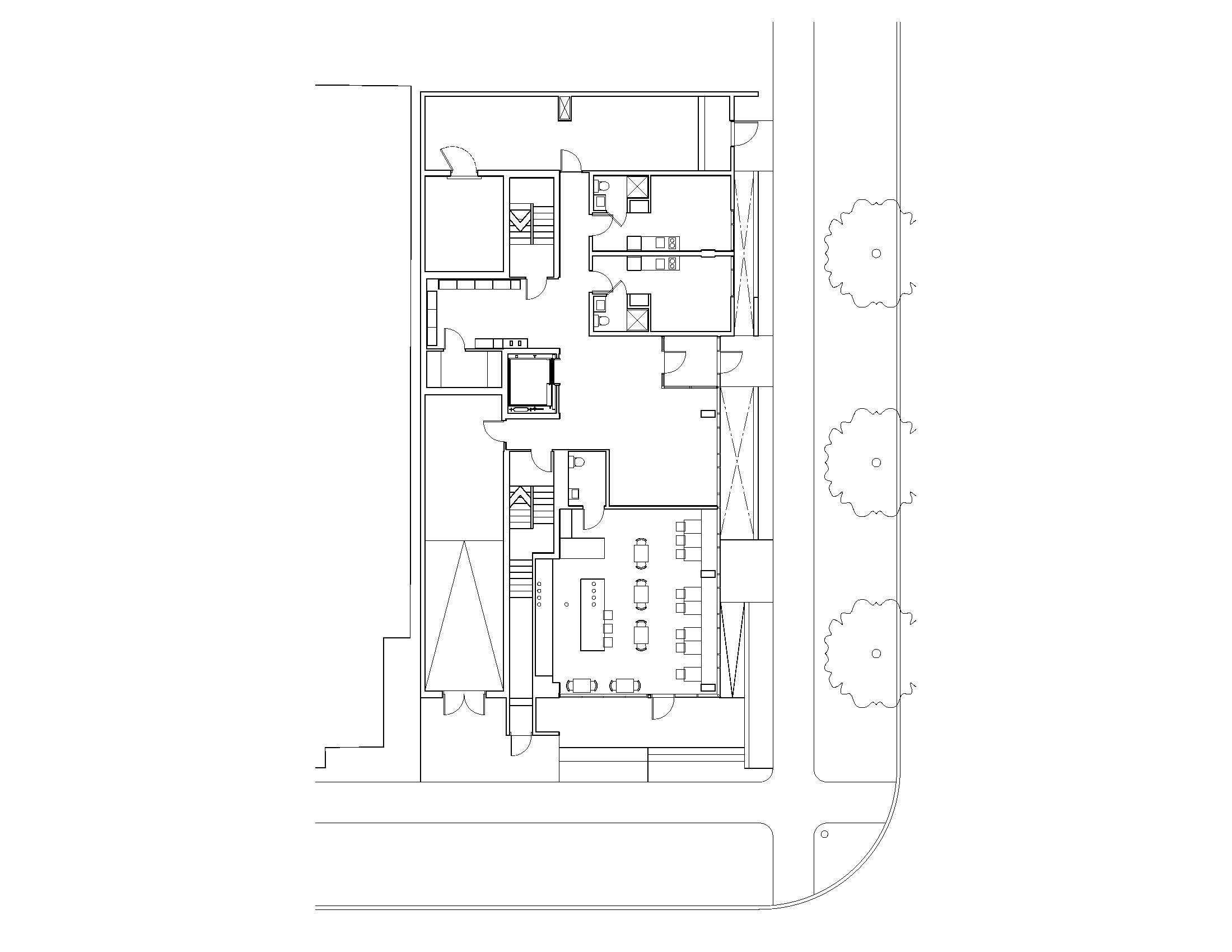
This 8-story project sits at the southeastern corner of the Ballard neighborhood fronting Gilman Park, the largest public open space within a half mile radius. Historically, the immediate blocks combined single family and small-scale multi-family residential properties with low industrial and commercial uses. The past decade has seen an increase in breweries and fitness-based businesses which has established a more active lifestyle district. Scale and density have progressively increased and with recent zoning changes the nearby blocks have evolved with higher density residential and mixed-use urban development.
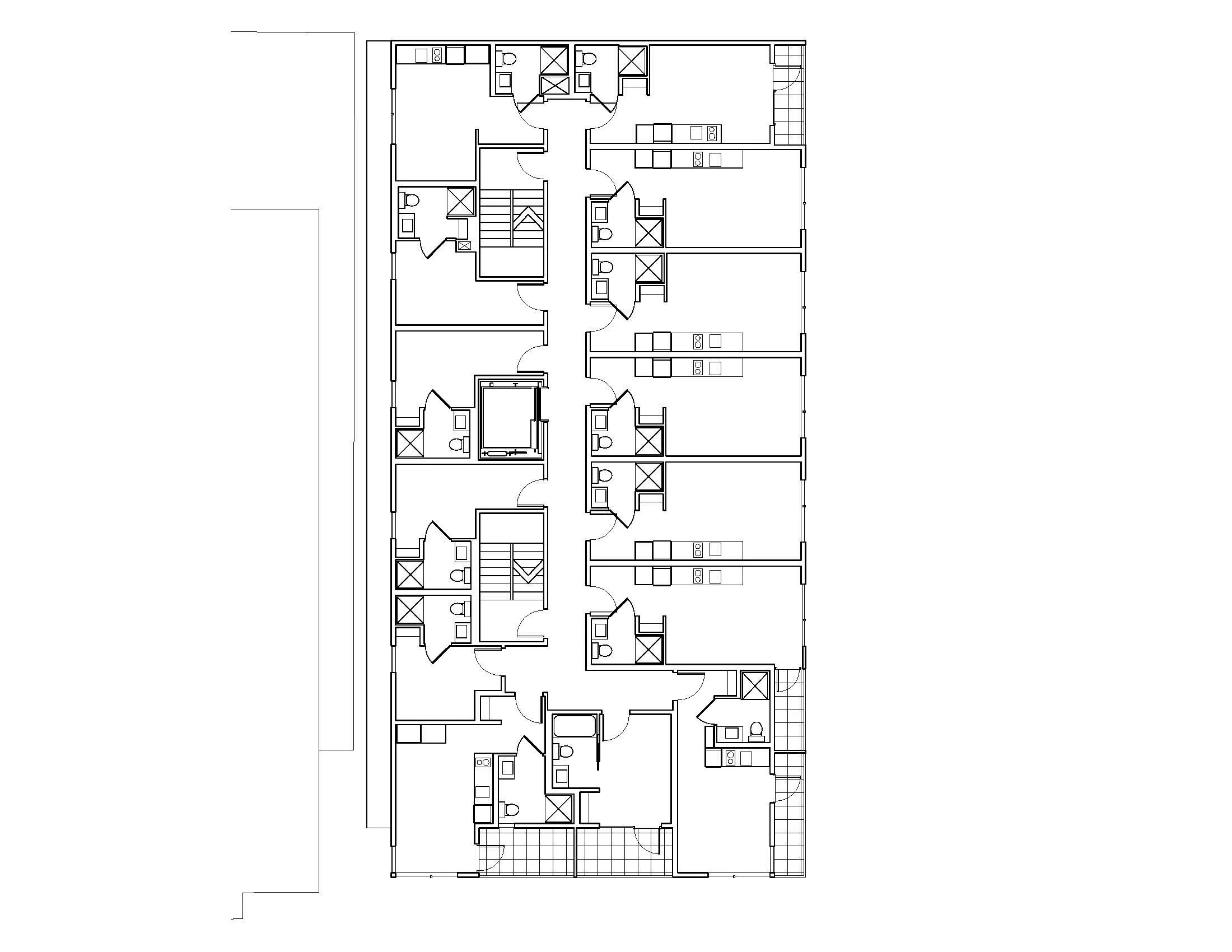
The project makes a strong connection to the corner landscape condition of the park and the contextual scale of neighboring structures by incorporating terraces and loggias into the two street facing building edges. The depth and variation in the form expands the compact dwellings and the street level glass corner retail space to engage the pedestrian nature of the neighborhood. This is a systematic patterning of openings that maintains a cohesive form while integrating a finer grained material texture and creates opportunities for resident controlled landscaping to animate the building.
With compact studio and 1 bed dwellings of varying exposures, including top floor lofted units, and common resident lounge spaces including a large shared kitchen, the project seeks to encourage a sense of community within the building. Residents have access to roof top communal gathering spaces and garden edges with views in all directions. These features create an active and integrated condition for residents while promoting a building identity that positively contributes to the urban neighborhood.
