(Re) Wilderness Microhome
(re) wilderness is a submission from the microhome design competition that invited participants to conceptualize an off-grid modular dwelling that would accommodate a hypothetical young professional couple. The total floor area of the structure could not exceed 25m2 or 270 square feet.
There were no geographical restrictions for these dwellings.
While the premise of the competition is to innovate on a very small, cost-effective, environmentally responsible, and energy efficient dwelling typology, (re)wilderness proposes that this may not be enough. It explores how we can live restoratively, as agents of reclamation. As we create and import energy, we can also redirect it to stimulate new life and nurture our environment. It explores how our homes can be agents as well, built to create energy, treat waste, and stimulate and support habitats.
To begin, it explores a front line of ecological change, a tidal river/waterway (not unlike hundreds along the American coast) the Duwamish.
The Duwamish River is the last twelve miles of the Green River Watershed. Flowing through sparsely populated rural areas, urban fringe, and filled industrial lands, it drains an area that stretches from the high peaks of the central Cascade Mountains to Elliott Bay in Seattle. Named for the Duwamish people that lived along the river and its tributaries, it supported centuries of cultural and subsistence uses until 1913 when the City of Seattle began channeling the river. Over the next few decades, as oxbows were removed and bulkheads constructed a meandering nine-mile long tidal river was transformed into a five-mile long engineered waterway.
Today, Native American tribes, government agencies, stewardship groups, and community organizations actively pursue restoration and citizen-based stewardship in the watershed.
Rising sea levels, King Tides, and major storm events simultaneously reclaim territories of industry as river.
It is no longer enough to simply lessen our environmental impact and to live sustainably.
It is time to live restoratively. As agents of reclamation, we create and import energy that can be redirected to stimulate new life and nurture severely impacted environments. Our homes are agents as well; built to create energy, treat waste, stimulate and support habitats.
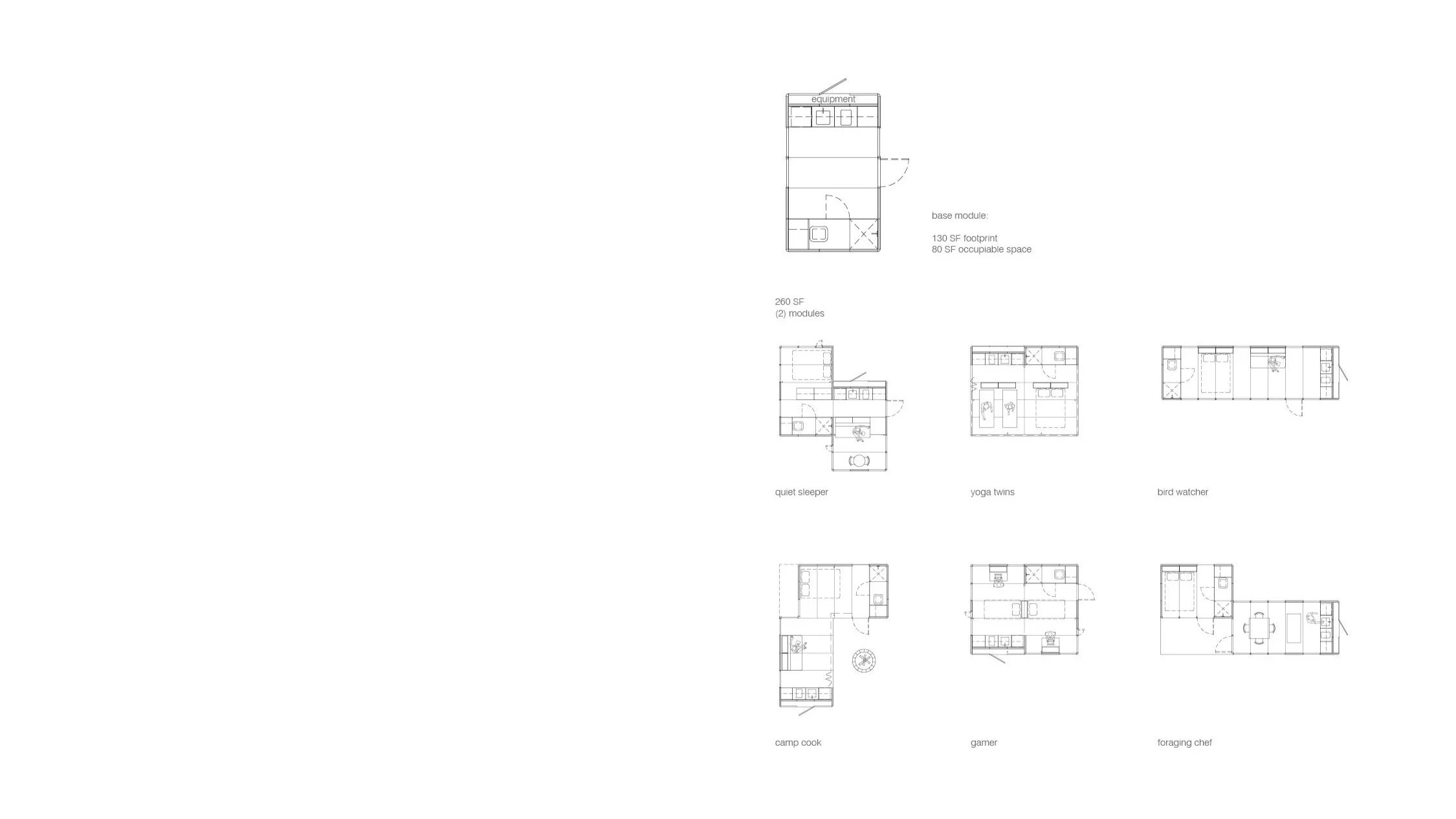
A component approach provides flexibility to adapt to various environment and user requirements. Components can be assembled on-site, and can be easily disassembled, relocated, and reassembled at a new site across the camp or the country when needed.
Modular need not lead to sameness. A component derived system can be flexible in order to create the particular. Some occupants might thrive in a singular space visually connected to the environment while another seeks spaces that are inward focused / separated to accommodate differing daily routines and schedules.
Multiple modules can be connected to create communal space.
The term camp is nearly universally understood across languages. It conjures associations of a simpler life, proximity to a more natural world, a rhythm tied to the rituals of a day, a season, or a year. It embodies a sense of lightness and impermanence and an ability to be packed up and moved.
The camp is an integrated community, where individuals rely on and support each other.
